東京都省エネ・再エネ住宅推進プラットフォーム ヘッダー画像

省エネ・再エネリフォーム事例集合住宅-04

ウッドブラインドを設置したリビングダイニングの写真
木の温もりが感じられるダイニングの写真
玄関から見たフリースペースの写真
フリースペースから見た玄関の写真
キッチンから見たリビングの写真
プロジェクターで大画面映像を楽しむの写真

築37年のマンションをフルスケルトン断熱リノベ
夫婦それぞれのテレワークに適した省エネ・快適空間を実現

ZEH水準 断熱 給湯器 高効率設備
30代の共働きのお施主様ご夫婦は通勤にも便利な都内の駅近マンションを購入されました。
新耐震基準を満たしている築37年のマンションを断熱リノベによって性能向上させることは将来への投資にもなると捉え、フルスケルトン断熱リノベを行いました。

住宅の概要

・建築年      : 1987年 ・構造       : 鉄骨鉄筋コンクリート造 ・階数       : 4階/8階 ・専有面積     : 68.58㎡(20.74坪) ・バルコニー面積  : 25.95㎡(7.83坪)

リフォームの概要

・工期  : 6ヶ月 ・工事費 : 1800万円(税込) ・事業者 : 株式会社参創ハウテック
(住宅生産団体連合会)

リフォームのポイント

間取りの変更

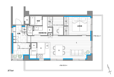
間取り図(BEFORE)
間取り図(AFTER)
スケルトンリノベを行い3LDKの間取りを1LDK+ワークスペース×2としました。ご夫婦とも仕事がらテレワークが多いので、リモート会議もお互いに心配なくできる間取りとしています。 [Before]図の青い部分は、断熱材を設置した範囲です。

内窓とウッドブラインド

リフォーム対象は、北を除く3方向に開けた角部屋のマンションの1室です。上階も半分程度屋上になっており、外部と接する面積が大きいので、部屋の中の熱も多く逃げていきます。 冬は寒く、夏は暑い部屋を、断熱化することで快適に暮らせるマンションにしました。 鉄道の線路が近く、単板のガラスでは外からの騒音が入ってきます。内窓を設置することで、断熱化と遮音の両方を実現できます。
リフォーム前のコーナー窓の写真リフォーム前のコーナー窓です。この部屋はワークスペースとなります。
工事中の内窓と断熱材の写真コーナー窓に内窓を設置しました。壁の青色の素材は、新しく設置した断熱材となります。
ウッドブラインドが下りた時の室内写真 ウッドブラインドが下りた時の室内写真内窓にウッドブラインドを設置して、光の調整やインテリアを整えました。

省エネエアコン

省エネ性能の高いエアコンを取付しました。部屋の断熱性能が上がり、さらに省エネ型のエアコンを使うことで、光熱費をグッと節約することができます。
省エネエアコンとルーバーの写真 省エネエアコンとルーバーの写真ルーバーの裏に省エネ型エアコンを設置しました。
ルーバーはインテリアを良くし、開けることができますので、エアコンのお手入れも簡単です。

施工の過程

内装を除去した状況の写真37年間、特に改修していなかった部屋です。
資材撤去中の写真既存の資材を全て撤去していきます。
資材除去後の壁の写真撤去後の写真です。
壁・天井へ断熱材を施工している写真壁・天井へ断熱材を施工していきます。
給湯器[BEFORE/AFTER] 給湯器[BEFORE/AFTER]古い給湯器も撤去し、省エネ型の給湯器に交換します。

リフォーム後

玄関から見るフリースペースの写真[玄関から見るフリースペース]
自然光が入るガラスブロックは、物件購入の決め手の1つだったそうです。
突き当りの建具は古道具屋さんで選んだ年代物を上吊り戸に手直しして取り付けました。
フリースペースから見る玄関の写真[フリースペースから見る玄関]
お施主様のアイディアで壁にアールをつけたことで、2人並んで靴を履ける幅を確保することができ、デザインと機能性を両立することができました。
右手の建具も古道具屋さんの建具です。
キッチンから見るリビング、ダイニングの写真[キッチンから見るリビング、ダイニング]
既存の梁によってLDKが緩やかにゾーニングされています。L字の造作キッチンの角の部分はダイニング側から使える引き出しとし、無駄なく使えるように計画しました。
リビングで、壁にプロジェクター映像が投影されている写真[リビング(1)]
元々テレビは置かず、壁面にプロジェクターで映像を投影するスタイルで生活されていたということでしたので、位置関係を考慮しながら造作の吊り戸棚内にプロジェクター置き場を設けました。
窓際にソファを置いても寒さを感じないからこそ可能な配置です。
リビングで、ウッドブラインドが下ろされた状態の写真[リビング(2)]
キッチンの後ろの古材でできている建具と窓に設置したウッドブラインドのテイストを合わせることで、室内の色調を合わせています。アンティークな家具も素敵です。
洗面脱衣室の写真[洗面脱衣室]
身支度時の歯磨き、洗顔、メイク、着替え、帰宅後の手洗い、入浴、着替えの動線や洗濯時の洗う、干す、畳む、しまう、の動線を考慮し、共用のクローゼットを洗面脱衣室内に設け、カーテンで仕切りました。

リフォームによる効果

断熱性能の向上

断熱性能は[UA値]改修前1.65w/㎡・K⇒改修後0.48w/㎡・K(改修前の3.4倍に向上)となり、ZEH水準を達成。
室温を実測しました。7~9月:平均27℃、12~2月:平均21℃

リフォーム後の感想

夏はエアコン1台のみ冷房をかけ、冬は内窓を開けて日射熱を取り込むことで日中は暖房をほとんど使わずに過ごせています。
改修後にフィンランドの友人が遊びに来ました。友人は北欧に比べて日本の住宅が寒いと思っていたのに、部屋の温かさを体感し驚いていました。
生活動線に合わせた収納を設けることができ、喜んでいます。

リフォーム施工時の注意点・補助金活用

リフォーム施工時の注意点

  • マンションの断熱化では、壁体内結露を防止するために発砲ウレタン材をよく使用いたします。
    発砲ウレタン材の施工は、専用工事車両を外に駐車し、工事車両から室内へ発砲ウレタン材を流し吹き付けていきます。
    マンションの外部に工事車両が駐車できなく階数も高いので、一般的な発砲ウレタン材の施工が困難でした。
    今回は透湿抵抗の高い断熱材を採用し、防湿施工を行うことで断熱工事を行いました。
  • 省エネ化のために潜熱回収型給湯機を採用しました。
    潜熱回収型給湯機は、燃焼時に結露水が排水します。
    今回の給湯器の設置位置がバルコニーでしたので、結露水の排水が可能でした。

補助金活用

  • 本物件では以下の補助金を活用しました。
    「こどもエコすまい支援事業(国土交通省)」
    「先進的窓リノベ事業(経済産業省・環境省)」
    「令和5年度既存住宅における省エネ改修促進事業(高断熱窓・ドア)助成金(東京都)」
協力:株式会社参創ハウテック
https://www.juutaku.co.jp/
※物件の詳細については、上記事業者にお問い合わせください。また、本ページにおける各情報は、情報提供を目的として作成されたものであり、特定の商品の売買等を推奨・勧誘するものではありません。
東京都省エネ・再エネ住宅推進プラットフォームフッター画像